0915283960 info@thelong.com.vn

Bàn thao tác sạch (Cleanbench)

Thông tin
Nhận báo giáHotline: 0915283960Tải Catalogue
Bàn thao tác sạch (cleanbench) là sản phẩm không thể thiếu trong bất kỳ nhà xưởng, nhà sản xuất nào. Loại bàn này có chức năng là gì? Những lĩnh vực nào cần? Và đâu là địa điểm bán sản phẩm uy tín, chất lượng nhất?
Cùng tìm kiếm câu trả lời qua bài viết dưới đây từ Airtech Thế Long bạn nhé!

1. BÀN THAO TÁC SẠCH (CLEANBENCH) LÀ GÌ?


Bàn thao tác sạch được sử dụng trong nhà máy và phòng thí nghiệm

1.1 Khái niệm bàn thao tác sạch

Bàn thao tác sạch (cleanbench) là một bàn làm việc sạch được kiểm soát để ngăn bụi bẩn trong không khí và môi trường xung quanh thông qua màng lọc HEPA, với mục đích để bảo vệ sản phẩm được thao tác bên trong không bị nhiễm bẩn.
Clean bench được dùng trong một số hoạt động nhất định như: lắp ráp các thiết bị điện tử hoặc thao tác trên một sản phẩm vô trùng yêu cầu độ sạch cao, không có bụi bẩn. Sử dụng chủ yếu trong các phòng sạch của nhà máy và phòng phí nghiệm.

1.2. Cấu tạo bàn thao tác sạch (Cleanbench)

Cấu tạo bàn thao tác sạch
  • Vật liệu khung: bàn thao tác sạch được làm từ vật liệu nhôm hộp chất lượng cao .
  • Khoang làm việccleanbench được làm bằng Inox 304 tạo thiết kế chắc chắn, sắc nét và tính thẩm mỹ cao cho sản phẩm.
  • Hệ thống lọc: Sử dụng loại lọc HEPA, có khả năng lọc được các hạt bụi 0.3µm với hiệu suất 99,99%, đảm bảo môi trường trong sạch và an toàn.
  • Quạt: sử dụng quạt với hiệu suất cao và ít tốn điện năng

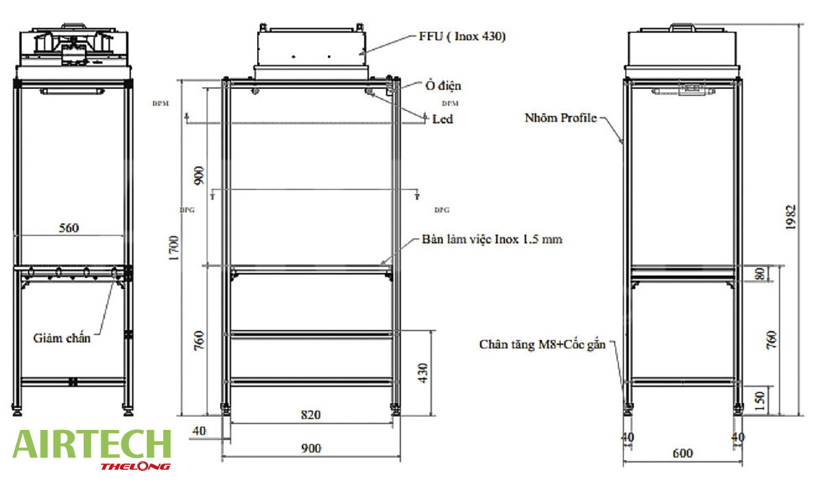
2. BẢN VẼ & THÔNG SỐ KỸ THUẬT BÀN THAO TÁC SẠCH

 

Bản vẽ kỹ thuật bàn thao tác sạch (Cleanbench)
 

Đặc trưng kỹ thuật

Thông số kỹ thuật

Model

ATV-BTT 900

Kích thước ngoài ( L x W x H ) (mm)

900 x 600 x 1700/1968

Kết cấu

Khung

Nhôm hộp

Mặt bàn làm việc

Inox 304

Ngăn bàn để dụng cụ 

Inox 304

Quạt (FFU)

Công suất

220VAC/1 pha/200W

Số lượng (Cái)

01

Đèn chiếu sáng

Công suất

5W/155mm

Số lượng (Cái) 

02

Lọc HEPA

(H13)

Kích thước

572 x 572 x70

Số lượng (Tấm)

01

Hiệu suất

99,99% At 0,3μm

Vận tốc gió (m/s)

0.45±10%

Độ ồn cách thiết bị 1,5m

53-58 dBA

Bánh xe

Thông dụng

Thông số kỹ thuật Cleanbench
 
Có bao nhiêu loại bàn thao tác phòng sạch?

Trên thị trường hiện nay có rất nhiều mẫu thiết kế bàn thao tác phòng sạch khác nhau, rất đa dạng về mẫu mã, chủng loại, giá thành. Tùy theo yêu cầu sử dụng và thiết kế môi trường, bàn thao tác phòng sạch được chia thành nhiều loại khác nhau. Dưới đây là những loại phổ biến nhất hiện nay.

Bàn thao tác phòng sạch phòng sạch dạng đơn giản
Đây là loại bàn thao tác cơ bản, thường được sử dụng trong các phòng sạch có yêu cầu không quá cao về cấu hình kỹ thuật. Bàn có thiết kế chắc chắn, chân bàn cố định hoặc có bánh xe, bề mặt làm việc bằng inox hoặc HPL chống tĩnh điện. Loại bàn này phù hợp với các phòng thí nghiệm, dây chuyền sản xuất quy mô nhỏ.

Hình ảnh bàn thao tác phòng sạch dạng đơn giản
 
Bàn thao tác phòng sạch có rèm chắn
Loại bàn thao tác này được trang bị thêm rèm chắn phòng sạch giúp ngăn ngừa sự xâm nhập của bụi bẩn, vi khuẩn từ bên ngoài, thường được sử dụng trong các lĩnh vực yêu cầu khắt khe về mức độ sạch như sản xuất vi mạch, dược phẩm hoặc nghiên cứu sinh học phân tử.





Lựa chọn đơn vị cung cấp uy tín sẽ giúp khách hàng yên tâm hơn về chất lượng sản phẩm
 

3. CHỨC NĂNG VÀ ỨNG DỤNG CỦA BÀN THAO TÁC SẠCH (CLEANBENCH)

Cleanbench được ứng dụng rộng rãi trong nhiều lĩnh vực

3.1. Chức năng

Bàn thao tác sạch (Cleanbench) sẽ đảm bảo hỗ trợ cho quá trình làm việc trong phòng sạch được tối ưu hơn.
Hơn nữa, Cleanbench đảm bảo rằng bề mặt làm việc sẽ liên tục được cung cấp một luồng không khí sạch đã được lọc qua màng lọc HEPA, các vật phẩm được thao tác bên trong không bị ô nhiễm bởi bụi và các chất bẩn,...
Tuy nhiên bàn thao tác sẽ chỉ bảo vệ vật phẩm được thao tác chứ không bảo vệ nhân viên hoặc môi trường xung quanh trong quá trình thực hiện.

3.2. Bàn thao tác sạch ứng dụng trong lĩnh vực nào?

Với cấu tạo đơn giản, nhiều ưu điểm lại có giá thành phải chăng, bàn thao tác sạch (cleanbench) được ứng dụng rộng rãi trong nhiều lĩnh vực, ngành nghề. Có thể kể đến như: các phòng thí nghiệm, phòng nghiên cứu, ngành công nghiệp sản xuất linh kiện, điện tử,…

4.  NGUYÊN LÝ HOẠT ĐỘNG CỦA BÀN THAO TÁC SẠCH (CLEANBENCH)

Cleanbench hút không khí vào bộ lọc thô bằng quạt đi qua màng lọc khí HEPA thông qua hộp áp suất tĩnh. Không khí đã được làm sạch sẽ được đưa vào trong không gian bàn thao tác ở trạng thái dòng chảy tầng theo phương thẳng đứng từ trên xuống
Nguyên lý hoạt động của Cleanbench
Luồng không khí được đưa vào khoang làm việc sẽ chỉ chảy theo một hướng duy nhất mà không bị thổi ngược lại. Các chất bẩn trên vật phẩm thao tác cũng theo đó mà bị cuốn đi, từ đó giúp đảm bảo quá trình làm việc với các sản phẩm được an toàn.

5. MUA BÀN THAO TÁC SẠCH Ở ĐÂU CHẤT LƯỢNG?


Airtech Thế Long chuyên cung cấp bàn thao tác phòng sạch (cleanbench) chất lượng, giá tốt
Hiện nay bạn có thể dễ dàng tìm thấy một địa điểm cung cấp, phân phối bàn thao tác sạch (cleanbench). Thế nhưng, không phải cái tên nào cũng là nơi uy tín. 
Trên thực tế, không ít đơn vị vì chạy theo lợi nhuận mà khiến khách hàng phải thất vọng về cả chất lượng sản phẩm đến dịch vụ. Kinh nghiệm mua bàn thao tác (cleanbench) từ nhiều khách hàng cho thấy bạn nên cân nhắc tới một số yếu tố sau khi quyết định nơi ‘’chọn mặt gửi vàng’’:
  • Đó phải là đơn vị có thương hiệu lâu năm, được nhiều khách hàng tin tưởng
  • Đơn vị đó phải cung cấp đầy đủ thông tin về sản phẩm, minh bạch giá cả
  • Đơn vị đó phải có chính sách bảo hành tốt
Nếu bạn vẫn chưa tìm được thương hiệu nào có thể đảm bảo đầy đủ những điều này thì Airtech Thế Long là gợi ý lý tưởng dành cho bạn. Đây là một trong những đơn vị cung cấp bàn thao tác sạch (cleanbench) cũng như các loại bàn thao tác khác hàng đầu trên thị trường với danh sách khách hàng khắp cả nước.

6. TẠI SAO​ NÊN CHỌN MUA BÀN THAO TÁC TẠI AIRTECH THẾ LONG

Bàn thao tác phòng sạch (cleanbench) chất lượng đạt chuẩn
Có nhiều lý do khiến Airtech Thế Long trở thành lựa chọn số 1 trong lòng khách hàng khi mua bàn thao tác phòng sạch. Một số ưu điểm không thể không nhắc tới của địa điểm này:
  • Sản phẩm chất lượng theo tiêu chuẩn ISO 14644-1: qua nhiều năm hoạt động, Airtech ngày càng chứng tỏ được vị thế của mình trong lòng khách hàng. Điều này đóng góp không nhỏ từ chất lượng sản phẩm. Toàn bộ sản phẩm tại Airtech đều đạt chuẩn chất lượng theo tiêu chuẩn ISO 14644-1 nên quý khách hàng hoàn toàn có thể yên tâm.
  • Chất lượng sản phẩm số 1 khu vực theo công nghệ Nhật Bản: các sản phẩm bàn thao tác sạch (cleanbench) của Airtech Thế Long đều được sản xuất từ nguyên vật liệu cao cấp với công nghệ sản xuất tiên tiến, hiện đại. Do đó sản phẩm được đánh giá có chất lượng tốt, vượt lên những tiêu chuẩn khắt khe của thị trường. 
  • Giá tốt nhất thị trường: với mục tiêu đặt quyền lợi khách hàng lên cao nhất, Airtech Thế Long luôn chú trọng đến giá thành. Công ty đảm bảo mang đến cho khách hàng sản phẩm tốt với giá cả cạnh tranh nhất thị trường. Đặc biệt, công ty cung cấp báo giá cụ thể, tư vấn tận tình để khách hàng lựa chọn được sản phẩm phù hợp nhất.
Nếu bạn cần thêm thông tin về bàn thao tác sạch (cleanbench) hay có bất kỳ thắc mắc nào khác, vui lòng liên hệ Airtech Thế Long qua hotline: 0915.283.960 để được tư vấn, hỗ trợ sớm nhất!

Đọc thêm Ẩn bớt
Gửi yêu cầu
Hãy cho chúng tôi biết mong muốn của bạn. Chúng tôi sẽ liên hệ lại cho bạn ngay lập tức
Họ tên (*)
Điện thoại (*)
Nội dung
© 2020 Bản quyền thuộc về Airtech Thế Long